Проект дома Широкое
Этот архитектурный проект создан для участков, где рельеф, перепады высот и окружение требуют не типовых решений, а точной и продуманной работы с пространством. Дом органично вписывается в склон, превращая его в преимущество — за счёт многоуровневой композиции, террас и панорамных видов, которые раскрываются из жилых помещений.
Архитектура проекта подчёркнуто спокойная и статусная. Чёткие линии, широкие свесы кровли и выразительные горизонтали создают ощущение надёжности и приватности, а большие оконные проёмы наполняют дом светом и визуально соединяют интерьер с природным ландшафтом. Здесь нет случайных элементов — каждая деталь работает на комфорт и ощущение уединённой виллы.
Планировочные решения ориентированы на удобную, размеренную жизнь. Основные жилые пространства раскрыты в сторону видов, террасы становятся естественным продолжением дома, а приватные зоны отделены от гостевых. Такой дом одинаково хорошо подходит как для постоянного проживания, так и для загородного формата — с возможностью отдыха, работы и приёма гостей.
Проект демонстрирует подход компании к индивидуальному строительству в Крыму: умение работать со сложными участками, учитывать особенности рельефа и создавать дома, которые не просто эффектно выглядят, а по-настоящему удобно живутся и сохраняют свою ценность со временем
Заказать Проект дома Широкое
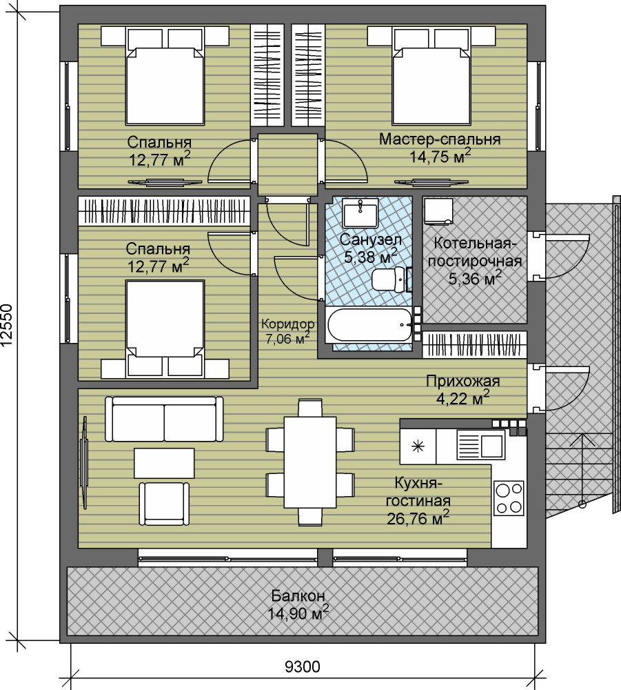
Характеристики проекта:
По всем объектам сформированы календарные графики, задачи выполняются параллельно. Критичный путь реализации процесса строительства дома контролирует ответственный менеджер.
При разработке концепции проекта учитывается бюджет строительства дома, после разработки АР проводится совещание инженерного состава для определения оптимальных конструкций, а заказчику выдается предварительный расчет стоимости.
По всем объектам сформированы календарные графики, строительство частных домов под ключ идет параллельно.
Выезд на участок или встреча в офисе для определения порядка работ.
