Проект дома Семидворье
Семидворье — пример того, как архитектура высокого уровня превращает сложный участок в главное преимущество будущего дома. Он создан для заказчиков, которые ценят приватность, виды, продуманное пространство и хотят получить не типовое решение, а дом, подчёркивающий статус и образ жизни владельца.
Архитектура проекта сочетает выразительный силуэт, панорамное остекление и чёткую композицию, благодаря чему дом органично «садится» на рельеф и раскрывается в сторону лучших видов. Перепад высот используется как элемент сценария жизни: террасы, лоджии и уровни создают ощущение уединённой виллы, а не обычного частного дома.
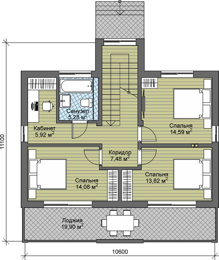
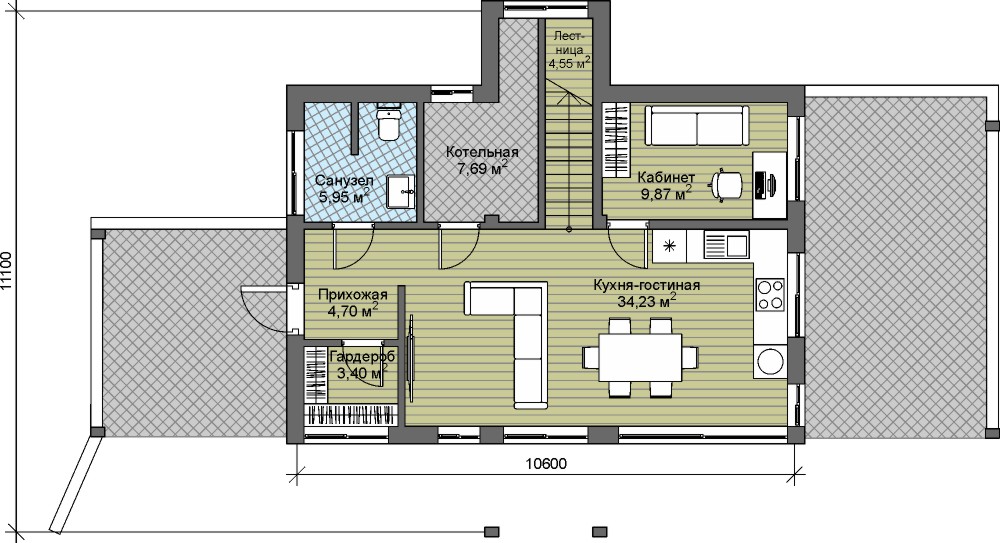
Планировочные решения ориентированы на комфорт премиум-уровня. Просторная гостиная становится центром дома и местом для приёма гостей, приватные спальни расположены отдельно, а кабинет позволяет работать в тишине, не покидая дома. Большие оконные проёмы наполняют интерьеры светом и визуально расширяют пространство, стирая границу между домом и природой.
Проект особенно востребован в Крыму, где участки часто имеют сложный рельеф и видовые характеристики. Он демонстрирует подход компании к индивидуальному строительству: умение работать со склонами, раскрывать потенциал участка и создавать дома, которые выглядят эффектно, удобно живутся и сохраняют ценность на годы вперёд
Заказать Проект дома Семидворье
Характеристики проекта:
По всем объектам сформированы календарные графики, задачи выполняются параллельно. Критичный путь реализации процесса строительства дома контролирует ответственный менеджер.
При разработке концепции проекта учитывается бюджет строительства дома, после разработки АР проводится совещание инженерного состава для определения оптимальных конструкций, а заказчику выдается предварительный расчет стоимости.
По всем объектам сформированы календарные графики, строительство частных домов под ключ идет параллельно.
Выезд на участок или встреча в офисе для определения порядка работ.
